Bạn đang tìm hiểu giá cửa nhôm trượt quay hiện nay là bao nhiêu một mét vuông?
Không biết nên chọn cửa nhôm trượt quay PMA, CAD, Alugoo hay Eurotech để vừa bền, vừa sang trọng?
Giá đã bao gồm kính, phụ kiện và lắp đặt trọn gói hay còn phát sinh chi phí khác?
Bài viết này sẽ giúp bạn cập nhật bảng giá cửa nhôm trượt quay 2026 mới nhất, kèm so sánh chi tiết giữa các dòng nhôm phổ biến trên thị trường.
NỘI DUNG CHÍNH :
Cửa nhôm trượt quay là gì? Có nên chọn loại cửa này không?
Cấu tạo và cơ chế hoạt động của cửa nhôm trượt quay
Cửa nhôm trượt quay là dòng cửa được thiết kế kết hợp giữa cơ chế trượt và mở quay, mang đến khả năng đóng mở linh hoạt, tiết kiệm không gian, nhưng vẫn đảm bảo độ kín khít cao.
Khung cửa được gia công từ nhôm hệ cao cấp như PMA, CAD, Alugoo, Eurotech, có độ dày tiêu chuẩn từ 1.4–2.0mm, kết hợp cùng kính cường lực dày 8–12mm và hệ phụ kiện đồng bộ (bản lề, ray trượt, khóa đa điểm…).
Cửa có thể mở quay 90° hoặc trượt song song theo ray, phù hợp với các vị trí cần tối ưu diện tích sử dụng như ban công, cửa mặt tiền, phòng khách hay văn phòng.


Cấu tạo cửa trượt quay
Ưu điểm nổi bật so với cửa mở quay và cửa trượt lùa
So với cửa mở quay truyền thống, cửa nhôm trượt quay có nhiều ưu điểm nổi bật:
Tiết kiệm không gian: Có thể trượt nhẹ sang một bên mà không chiếm diện tích mở cánh.
Linh hoạt sử dụng: Kết hợp hai chế độ – vừa trượt, vừa quay, dễ dàng điều chỉnh theo nhu cầu.
Kín khít, cách âm – cách nhiệt tốt: Hệ gioăng cao su kép và khóa đa điểm giúp cửa đóng kín, hạn chế bụi, tiếng ồn và thất thoát nhiệt.
Thẩm mỹ cao: Thiết kế hiện đại, khung mảnh, kính rộng tạo cảm giác sang trọng, phù hợp nhà phố, biệt thự, chung cư cao cấp.
Độ bền vượt trội: Nhôm sơn tĩnh điện chống oxy hóa, sử dụng bền đẹp trên 15 năm.
Ứng dụng phổ biến trong nhà ở, biệt thự, văn phòng
Cửa nhôm trượt quay hiện được ứng dụng đa dạng trong nhiều công trình khác nhau:
Nhà phố – chung cư: Dùng cho cửa ban công, logia, cửa sổ hoặc cửa ra sân.
Biệt thự cao cấp: Là lựa chọn phổ biến cho cửa mặt tiền, cửa thông phòng, cửa phòng làm việc.
Văn phòng – showroom: Mang lại phong cách hiện đại, tạo không gian mở và thông thoáng.
Với những ưu điểm vượt trội về thẩm mỹ, công năng và độ bền, cửa nhôm trượt quay đang trở thành xu hướng lắp đặt mới trong năm 2026, đặc biệt là ở các dòng nhôm hệ PMA, CAD, Alugoo và Eurotech.
Báo giá cửa nhôm trượt quay 2026 chi tiết theo từng hệ nhôm
Cập nhật bảng giá cửa nhôm trượt quay mới nhất năm 2026 dưới đây, tổng hợp từ các dòng nhôm phổ biến hiện nay gồm Alugood, PMA, Eurotech và CAD.
Giá được tính theo mét vuông (m²), đã bao gồm khung nhôm, kính cường lực và phụ kiện tiêu chuẩn, chưa gồm thi công và VAT (có thể chênh lệch nhẹ tùy khu vực và yêu cầu thiết kế).
| Loại nhôm hệ | Giá thường (VNĐ/m²) | Đặc điểm nổi bật |
|---|---|---|
| Alugood | 2.652.000 – 2.898.000 | Khung nhôm dày, bề mặt sơn tĩnh điện mịn; vận hành êm, bền màu; phù hợp nhà phố và biệt thự. |
| PMA | 2.244.000 – 3.060.000 | Nhôm định hình cao cấp, chịu lực tốt; đa dạng màu sắc; thiết kế thẩm mỹ, sang trọng. |
| Eurotech | 2.091.000 – 2.856.000 | Hệ nhôm châu Âu, giá tốt, khả năng cách âm – cách nhiệt ổn định; phù hợp văn phòng, nhà phố. |
| CAD | 2.091.000 – 3.264.000 | Hệ nhôm cao cấp, khung vững chắc, dễ lắp đặt; linh hoạt cho nhiều kiểu cửa trượt quay hiện đại. |
Dự toán cửa nhôm trượt quay 2 cánh Adoor


Mẫu tham khảo Cửa nhôm trượt quay 2 cánh
Dự toán giá cửa nhôm trượt quay 2 cánh: Alugood
| Hạng mục | Chi tiết |
|---|---|
| Đơn giá khung (theo bạn cung cấp) | 2.652.000 – 2.898.000 VNĐ/m² |
| Diện tích | 3.52 m² |
| Giá khung (thấp) = 2.652.000 × 3.52 | 9.335.040 VNĐ |
| Giá khung (cao) = 2.898.000 × 3.52 | 10.200.960 VNĐ |
| Tổng chi phí cố định (kính + pk + nt + vc + vật tư) | 4.666.000 VNĐ |
| Subtotal (thấp) | 9.335.040 + 4.666.000 = 14.001.040 VNĐ |
| VAT (10%) (thấp) | 1.400.104 VNĐ |
| Tổng (thấp) | 15.401.144 VNĐ |
| Subtotal (cao) | 10.200.960 + 4.666.000 = 14.866.960 VNĐ |
| VAT (10%) (cao) | 1.486.696 VNĐ |
| Tổng (cao) | 17.401.656 VNĐ |
Dự toán giá cửa nhôm trượt quay 2 cánh: PMA
| Hạng mục | Chi tiết |
|---|---|
| Đơn giá khung | 2.244.000 – 3.060.000 VNĐ/m² |
| Diện tích | 3.52 m² |
| Giá khung (thấp) = 2.244.000 × 3.52 | 7.898.880 VNĐ |
| Giá khung (cao) = 3.060.000 × 3.52 | 10.771.200 VNĐ |
| Tổng chi phí cố định | 4.666.000 VNĐ |
| Subtotal (thấp) | 7.898.880 + 4.666.000 = 12.564.880 VNĐ |
| VAT (10%) (thấp) | 1.256.488 VNĐ |
| Tổng (thấp) | 13.821.368 VNĐ |
| Subtotal (cao) | 10.771.200 + 4.666.000 = 15.437.200 VNĐ |
| VAT (10%) (cao) | 1.543.720 VNĐ |
| Tổng (cao) | 16.980.920 VNĐ |
Dự toán giá cửa nhôm trượt quay 2 cánh: Eurotech
| Hạng mục | Chi tiết |
|---|---|
| Đơn giá khung | 2.091.000 – 2.856.000 VNĐ/m² |
| Diện tích | 3.52 m² |
| Giá khung (thấp) = 2.091.000 × 3.52 | 7.360.320 VNĐ |
| Giá khung (cao) = 2.856.000 × 3.52 | 10.053.120 VNĐ |
| Tổng chi phí cố định | 4.666.000 VNĐ |
| Subtotal (thấp) | 7.360.320 + 4.666.000 = 12.026.320 VNĐ |
| VAT (10%) (thấp) | 1.202.632 VNĐ |
| Tổng (thấp) | 13.228.952 VNĐ |
| Subtotal (cao) | 10.053.120 + 4.666.000 = 14.719.120 VNĐ |
| VAT (10%) (cao) | 1.471.912 VNĐ |
| Tổng (cao) | 16.191.032 VNĐ |
Dự toán giá cửa nhôm trượt quay 2 cánh: CAD
| Hạng mục | Chi tiết |
|---|---|
| Đơn giá khung | 2.091.000 – 3.264.000 VNĐ/m² |
| Diện tích | 3.52 m² |
| Giá khung (thấp) = 2.091.000 × 3.52 | 7.360.320 VNĐ |
| Giá khung (cao) = 3.264.000 × 3.52 | 11.489.280 VNĐ |
| Tổng chi phí cố định | 4.666.000 VNĐ |
| Subtotal (thấp) | 7.360.320 + 4.666.000 = 12.026.320 VNĐ |
| VAT (10%) (thấp) | 1.202.632 VNĐ |
| Tổng (thấp) | 13.228.952 VNĐ |
| Subtotal (cao) | 11.489.280 + 4.666.000 = 16.155.280 VNĐ |
| VAT (10%) (cao) | 1.615.528 VNĐ |
| Tổng (cao) | 17.770.808 VNĐ |
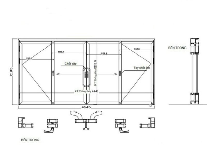
Dự toán cửa nhôm trượt quay 3 cánh Adoor


Mẫu Cửa nhôm trượt quay 3 cánh
Dự toán giá cửa nhôm trượt quay 3 cánh: Alugood
| Mục | Giá trị |
|---|---|
| Đơn giá khung (theo bạn cung cấp) | 2.652.000 – 2.898.000 VNĐ/m² |
| Diện tích | 5.28 m² |
| Giá khung (thấp) = 2.652.000 × 5.28 | 14.002.560 VNĐ |
| Giá khung (cao) = 2.898.000 × 5.28 | 15.301.440 VNĐ |
| Tổng cố định (kính + pk + nc + vc + vật tư) | 6.074.000 VNĐ |
| Subtotal (thấp) | 14.002.560 + 6.074.000 = 20.076.560 VNĐ |
| VAT (10%) (thấp) | 2.007.656 VNĐ |
| Tổng (thấp) | 22.084.216 VNĐ |
| Subtotal (cao) | 15.301.440 + 6.074.000 = 21.375.440 VNĐ |
| VAT (10%) (cao) | 2.137.544 VNĐ |
| Tổng (cao) | 23.512.984 VNĐ |
Dự toán giá cửa nhôm trượt quay 3 cánh: PMA
| Mục | Giá trị |
|---|---|
| Đơn giá khung | 2.244.000 – 3.060.000 VNĐ/m² |
| Diện tích | 5.28 m² |
| Giá khung (thấp) = 2.244.000 × 5.28 | 11.848.320 VNĐ |
| Giá khung (cao) = 3.060.000 × 5.28 | 16.156.800 VNĐ |
| Tổng cố định | 6.074.000 VNĐ |
| Subtotal (thấp) | 11.848.320 + 6.074.000 = 17.922.320 VNĐ |
| VAT (10%) (thấp) | 1.792.232 VNĐ |
| Tổng (thấp) | 19.714.552 VNĐ |
| Subtotal (cao) | 16.156.800 + 6.074.000 = 22.230.800 VNĐ |
| VAT (10%) (cao) | 2.223.080 VNĐ |
| Tổng (cao) | 24.453.880 VNĐ |
Dự toán giá cửa nhôm trượt quay 3 cánh: Eurotech
| Mục | Giá trị |
|---|---|
| Đơn giá khung | 2.091.000 – 2.856.000 VNĐ/m² |
| Diện tích | 5.28 m² |
| Giá khung (thấp) = 2.091.000 × 5.28 | 11.360.320 VNĐ |
| Giá khung (cao) = 2.856.000 × 5.28 | 15.053.280 VNĐ |
| Tổng cố định | 6.074.000 VNĐ |
| Subtotal (thấp) | 11.360.320 + 6.074.000 = 17.434.320 VNĐ |
| VAT (10%) (thấp) | 1.743.432 VNĐ |
| Tổng (thấp) | 19.177.752 VNĐ |
| Subtotal (cao) | 15.053.280 + 6.074.000 = 21.127.280 VNĐ |
| VAT (10%) (cao) | 2.112.728 VNĐ |
| Tổng (cao) | 23.239.000 |
Dự toán giá cửa nhôm trượt quay 3 cánh: CAD
| Mục | Giá trị |
|---|---|
| Giá khung (cao) | 17.233.920 VNĐ |
| Tổng cố định | 6.074.000 VNĐ |
| Subtotal (thấp) | 11.360.320 + 6.074.000 = 17.434.320 VNĐ |
| VAT (10%) (thấp) | 1.743.432 VNĐ |
| Tổng (thấp) | 19.177.752 VNĐ |
| Subtotal (cao) | 17.233.920 + 6.074.000 = 23.307.920 VNĐ |
| VAT (10%) (cao) | 2.330.792 VNĐ |
| Tổng (cao) | 25.638.712 VNĐ |
Dự toán cửa nhôm trượt quay 4 cánh Adoor


Mẫu Cửa nhôm trượt quay 4 cánh
Dự toán giá cửa nhôm trượt quay 4 cánh: Alugood
| Hạng mục | Giá trị |
|---|---|
| Đơn giá khung (theo bạn cung cấp) | 2.652.000 – 2.898.000 VNĐ/m² |
| Diện tích | 7.04 m² |
| Giá khung (thấp) = 2.652.000 × 7.04 | 18.670.080 VNĐ |
| Giá khung (cao) = 2.898.000 × 7.04 | 20.401.920 VNĐ |
| Tổng cố định (kính + pk + nc + vc + vật tư) | 7.482.000 VNĐ |
| Subtotal (thấp) | 18.670.080 + 7.482.000 = 26.152.080 VNĐ |
| VAT (10%) (thấp) | 2.615.208 VNĐ |
| Tổng (thấp) | 28.767.288 VNĐ |
| Subtotal (cao) | 20.401.920 + 7.482.000 = 27.883.920 VNĐ |
| VAT (10%) (cao) | 2.788.392 VNĐ |
| Tổng (cao) | 30.672.312 VNĐ |
Dự toán giá cửa nhôm trượt quay 4 cánh: PMA
| Hạng mục | Giá trị |
|---|---|
| Đơn giá khung | 2.244.000 – 3.060.000 VNĐ/m² |
| Diện tích | 7.04 m² |
| Giá khung (thấp) = 2.244.000 × 7.04 | 15.797.760 VNĐ |
| Giá khung (cao) = 3.060.000 × 7.04 | 21.542.400 VNĐ |
| Tổng cố định | 7.482.000 VNĐ |
| Subtotal (thấp) | 15.797.760 + 7.482.000 = 23.279.760 VNĐ |
| VAT (10%) (thấp) | 2.327.976 VNĐ |
| Tổng (thấp) | 25.607.736 VNĐ |
| Subtotal (cao) | 21.542.400 + 7.482.000 = 29.024.400 VNĐ |
| VAT (10%) (cao) | 2.902.440 VNĐ |
| Tổng (cao) | 31.926.840 VNĐ |
Dự toán giá cửa nhôm trượt quay 4 cánh: CAD
| Hạng mục | Giá trị |
|---|---|
| Đơn giá khung | 2.091.000 – 3.264.000 VNĐ/m² |
| Diện tích | 7.04 m² |
| Giá khung (thấp) = 2.091.000 × 7.04 | 14.720.640 VNĐ |
| Giá khung (cao) = 3.264.000 × 7.04 | 22.978.560 VNĐ |
| Tổng cố định | 7.482.000 VNĐ |
| Subtotal (thấp) | 14.720.640 + 7.482.000 = 22.202.640 VNĐ |
| VAT (10%) (thấp) | 2.220.264 VNĐ |
| Tổng (thấp) | 24.422.904 VNĐ |
| Subtotal (cao) | 22.978.560 + 7.482.000 = 30.460.560 VNĐ |
| VAT (10%) (cao) | 3.046.056 VNĐ |
| Tổng (cao) | 33.506.616 VNĐ |
Dự toán giá cửa nhôm trượt quay 4 cánh: Eurotech
| Hạng mục | Giá trị |
|---|---|
| Đơn giá khung | 2.091.000 – 2.856.000 VNĐ/m² |
| Diện tích | 7.04 m² |
| Giá khung (thấp) = 2.091.000 × 7.04 | 14.720.640 VNĐ |
| Giá khung (cao) = 2.856.000 × 7.04 | 20.106.240 VNĐ |
| Tổng cố định | 7.482.000 VNĐ |
| Subtotal (thấp) | 14.720.640 + 7.482.000 = 22.202.640 VNĐ |
| VAT (10%) (thấp) | 2.220.264 VNĐ |
| Tổng (thấp) | 24.422.904 VNĐ |
| Subtotal (cao) | 20.106.240 + 7.482.000 = 27.588.240 VNĐ |
| VAT (10%) (cao) | 2.758.824 VNĐ |
| Tổng (cao) | 30.347.064 VNĐ |
Có thể bạn muốn xem tham khảo nhiều mẫu cửa nhôm trượt quay: 👉 Mẫu cửa nhôm trượt quay
Hệ thống cửa hàng & kênh bán hàng Adoor toàn quốc
Adoor hiện có mạng lưới showroom và đại lý phủ rộng 63 tỉnh thành, giúp khách hàng dễ dàng xem mẫu, đo đạc và nhận báo giá tận nơi:
Đại lý trực tiếp: TP.HCM, Hà Nội, Đà Nẵng, Cần Thơ, Nha Trang.
Kênh online chính thức: [adoor.vn] – cập nhật bảng giá cửa nhôm trượt quay mới nhất, có tính năng nhập kích thước để nhận báo giá tự động.
Nhiều nhà thầu liên kết: hợp tác cùng các kiến trúc sư, công ty xây dựng, cửa hàng nhôm kính địa phương, giúp khách hàng được hỗ trợ thi công nhanh chóng.


Adoor thi công toàn quốc
Lan tỏa thương hiệu, tối ưu lợi ích người mua
Adoor không chỉ nổi bật nhờ sản phẩm mà còn bởi chiến lược truyền thông mạnh mẽ & ưu đãi thực tế cho khách hàng:
Báo giá minh bạch: tất cả sản phẩm được niêm yết giá rõ ràng, giúp khách hàng dễ so sánh và chọn hệ nhôm phù hợp.
Ưu đãi định kỳ:
Giảm 10–15% khi đặt hàng sớm đầu năm 2026.
Miễn phí lắp đặt tại các khu vực nội thành.
Tặng nâng cấp phụ kiện cao cấp khi thi công trọn gói từ 3 bộ cửa trở lên.
Chương trình khách hàng thân thiết: tích điểm, giảm giá cho đơn hàng tiếp theo.


Adoor luôn có chương trình khuyến mãi tốt nhất cho khách hàng
Đội ngũ tận tâm, chuyên nghiệp Adoor
Một trong những yếu tố giúp Adoor giữ vững vị thế thương hiệu nhôm kính cao cấp chính là đội ngũ nhân sự chuyên môn cao:
Tư vấn viên chuyên nghiệp: am hiểu kỹ thuật từng hệ nhôm (Alugood, PMA, Eurotech, CAD), tư vấn theo nhu cầu và ngân sách.
Kỹ thuật viên tay nghề cao: được đào tạo định kỳ, nắm vững quy chuẩn thi công từng dòng cửa nhôm trượt quay.
Dịch vụ chăm sóc sau bán hàng:
Bảo hành từ 3–5 năm, hỗ trợ sửa chữa tận công trình.
Tổng đài hỗ trợ 7 ngày/tuần.
Dịch vụ bảo trì định kỳ miễn phí 2 lần/năm.


Đội ngũ Adoor chuyên nghiệp được đào tạo
Chuẩn hóa từ báo giá đến lắp đặt
Adoor xây dựng quy trình khép kín – nhanh gọn – rõ ràng, giúp khách hàng dễ theo dõi từng bước:
| Bước | Nội dung quy trình |
|---|---|
| 1. Tiếp nhận & tư vấn | Nhận thông tin kích thước, nhu cầu, loại cửa – tư vấn miễn phí. |
| 2. Khảo sát thực tế | Kỹ thuật viên đến đo đạc tại nhà, lên phương án thi công. |
| 3. Báo giá & xác nhận hợp đồng | Gửi báo giá chính xác, kèm bản vẽ chi tiết, thời gian lắp đặt rõ ràng. |
| 4. Sản xuất – lắp đặt | Gia công tại xưởng Adoor đạt chuẩn ISO, lắp đặt theo quy trình an toàn kỹ thuật. |
| 5. Nghiệm thu – bàn giao – bảo hành | Khách hàng nghiệm thu tại chỗ, nhận phiếu bảo hành điện tử và hướng dẫn sử dụng. |
Thương hiệu vàng, nhà xưởng đạt chuẩn quốc tế
Adoor không chỉ nổi bật bởi mẫu mã đa dạng mà còn bởi năng lực sản xuất hàng đầu trong ngành nhôm kính Việt Nam.
Toàn bộ quy trình gia công cửa nhôm trượt quay được thực hiện trực tiếp tại hệ thống nhà xưởng hiện đại của Adoor, đảm bảo chất lượng đồng nhất, chính xác đến từng chi tiết.


Thương hiệu vàng được khách hàng tin dùng









